GARDEN WITH
A MEMORY

PRIVATE GARDEN
AMSTERDAM, NL

2023

 

Project status
Built
Client
Private
Year
2023
Location
Amsterdam, NL
In collaboration with
Joost Emmerik, Paul Casteleijn

INDUSTRIAL SITE
PIONEER VEGETATION

In the north of Amsterdam, studio audal and Joost Emmerik were invited to design a private garden in a street of the Buiksloterham. As part of the expansion of the city, the former industrial harbor with its characteristic warehouses, cranes and large infrastructural elements is currently being transformed into new dwellings.

To preserve the memory of its industrial past, Garden with a memory is based around the integration of various elements from the former site that can still be found around. Precisely placed relics are the central pieces of the garden, while concrete elements, normally used for roads and harbors, are being used to create a terrace to sit on.

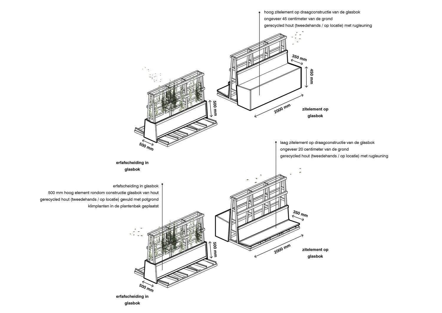
Wooden seating element with storage in it have been design from a former glass stillage, which but also serves as a separation with the neighbors. Elements that once functioned as concrete barriers, are rotated 90 degrees and used as seating elements as playful reading niches for the family.

Between the relics, planting beds have been incorporated with multi-stem trees and wild pioneer planting. To enhance the biodiversity, old, fallen logs have been placed to shelter various animal species. A wide range of plant species that flower throughout the year offer a pollinating paradise for many ambassador insects within this region of Amsterdam. 

Garden with a memory demonstrates that rather than removing the history of a site, but preserving it, nature can grow anywhere despite its challenges. When the development is completed, this garden will function as a memory of what once was for both the family and the passer-by.

GARDEN WITH A MEMORY

PRIVATE GARDEN
AMSTERDAM, NL

2024

Project status
Built
Client
Private
Year
2023
Location
Amsterdam, NL
In collaboration with
Joost Emmerik, Paul Casteleijn

Previous
Previous

Weaving Park Lingezegen

Next
Next

Dreef street